О проекте Напишите нам

Мачтовая трансформаторная подстанция комплектная КТПМ

« к списку объявлений

26.09.2014 Предложение Камеры КСО, электрощиты ЩО, ВРУ , ПР, ОП, ЩР, ЩЭ, УЭРМ, ЯВУ, ЯРП, ЯТП, РУСМ,ШР, ШРС

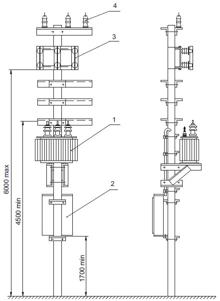
Мачтовая трансформаторная подстанция комплектная КТПМ -25...250/6(10)/0,4-У1 предназначена
для приема электрической энергии трехфазного переменного тока частотой 50 Гц номинальным на- пряжением
6(10) кВ, преобразования его в напряжение 0,4 кВ и распределения по
потребителям. Типы КТПМ: КПТМ-25/6/0,4-У1 ; КПТМ-25/10/0,4-У1; КПТМ-40/6/0,4-У1 ;
КПТМ-40/10/0,4-У1 ;КПТМ-63/6/0,4-У1 ;КПТМ-63/10/0,4-У1 ;КПТМ-100/6/0,4-У1 ;
КПТМ-100/10/0,4-У1 ;КПТМ-160/6/0,4-У1 ; КПТМ-160/10/0,4-У1;
КПТМ-250/6/0,4-У1 ; КПТМ-250/10/0,4-У1 Конструктивно КТПМ состоит из:
— устройства со стороны высшего напряжения — УВН;
— силового трансформатора Т;
— распределительного устройства со стороны низшего напряжения — РУНН.
УВН, РУНН и силовой трансформатор расположены на общей станине, имеющей монтажное
основание для установки подстанции. Конструкция КТПМ расчитана на установку силового
трехфазного двухобмоточного трансформатора с естественным масляным охлаждением серии ТМ,ТМГ.
Изготовление по ГОСТ, сроки изготовления минимальные , отгрузки по регионам
. (495) 720-70-42; 903-720-70-42 т./ф.4922-305368 ;8-903-6471471
http://www.electromarcet.ru

Объявление размещено компанией: Камеры КСО, электрощиты ЩО, ВРУ , ПР, ОП, ЩР, ЩЭ, УЭРМ, ЯВУ, ЯРП, ЯТП, РУСМ,ШР, ШРС

Ещё объявления

05.11.2025 Предложение МППА «Арматурщики» СНГ

Служебное письмо. Руководителю, для информации служб: Маркетинга. Продаж.

Портал работает с 2009 года. Наши Партнеры, предприятия(организации): Россия, Cтраны СНГ. Китай. Специфика: Металлопрокат. Запорная арматура. Иное пр...

Открыть объявление »

05.11.2025 Разное МППА «Арматурщики» СНГ

Актуальная информация о недобросовестных предприятиях

МППА АРМАТУРЩИКИ СНГ, предлагаем без регистрации: Есть сообщения о недобросовестном покупателе\поставщике, пишите на странице НЕДОБРОСОВЕСТНЫЕ ПРЕДП...

Открыть объявление »

05.11.2025 Предложение МЕТАЛЛ ООО

Чугун, ферросплавы, цветные металлы

Чугун Передельный ПЛ 1, 2 Чугун Литейный марки Л1-Л6 Ферромарганец ФМн78, 88 Ферросилиций Фс45, 65, 75 Феррохром, Ферромолибден ФМо60 Никель Н1...

Открыть объявление »

05.11.2025 Предложение Бинг

Предлагаем новые дешевые изоляторы ПС-70Е 405 руб/шт с НДС

Добрый день! Предлагаем новые изоляторы ПС-70Е  212W  ГОСТ 27661-2017 2022 года 625 штук Южноуральского завода Цена 405 рублей за штуку с НДС  в Крас...

Открыть объявление »

05.11.2025 Предложение Бинг

Предлагаем новые дешевые изоляторы ПС-70Е 405 руб/шт с НДС

Добрый день! Предлагаем новые изоляторы ПС-70Е  212W  ГОСТ 27661-2017 2022 года 625 штук Южноуральского завода Цена 405 рублей за штуку с НДС  в Крас...

Открыть объявление »

05.11.2025 Предложение СтальГорн

Трубы бесшовные 8х2,5, 10х2, 10х2,5, 16х2,5, 20х2,5, 25х2,5, 38х1,5..........273х27 10Х17Н13М2(Т).

360р!!! Трубы нержавеющие 8х1, 18х2, 25х1,5, 57х2 12Х18Н10Т 360тр/тн. Трубы 89х7 08Х12Н4ГСМ. Бесшовные. 9тн. 10-11м. 8-900-088-88-86. Трубы нер...

Открыть объявление »

05.11.2025 Предложение СтальГорн

360р!!! Трубы нержавеющие 8х1, 18х2, 25х1,5, 57х2 12Х18Н10Т 360тр/тн. Трубы 89х7 08Х12Н4ГСМ. Бесшовные. 9тн. 10-11м. 8-900-088-88-86.

360р!!! Трубы нержавеющие 8х1, 18х2, 25х1,5, 57х2 12Х18Н10Т 360тр/тн. Трубы 89х7 08Х12Н4ГСМ. Бесшовные. 9тн. 10-11м. 8-900-088-88-86. Трубы нер...

Открыть объявление »

05.11.2025 Предложение ООО Альбатрос

Тара, ящики, мульды, металлические 2500х1500х800мм

Предлагаем тару, ящики, контейнеры, мульды, металлические грузоподъёмностью до 3500 кг тара металлическая 2500х1500х800 мм, вес 600 кг., б/у цен...

Открыть объявление »

05.11.2025 Предложение ООО Альбатрос

Тара, ящики, мульды, металлические 620х420х420мм

Предлагаем тару, ящики, контейнеры, мульды, металлические грузоподъёмностью до 200 кг тара металлическая 620х420х420 мм, вес 20 кг., б/у цена 2.00...

Открыть объявление »

05.11.2025 Предложение ООО Альбатрос

Тара, ящики, мульды, металлические 1200х800х800мм

Предлагаем тару, ящики, контейнеры, мульды, металлические грузоподъёмностью до 1500 кг тара металлическая 1200х800х800 мм, вес 120 -150кг., б/у...

Открыть объявление »


Copyright © 2009-2025 SteelSite.ru - Металлургический портал, оборудование для обработки металлов, металлургическая продукция.

Обратная связь